Главное меню:

Мебель в стиле LOFT


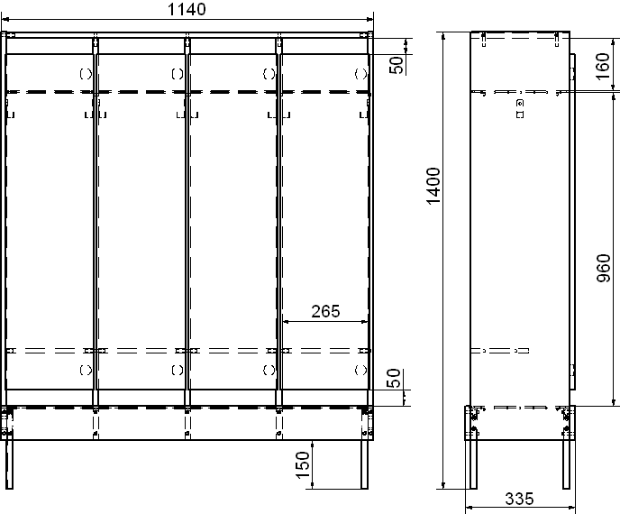
Шкаф для одежды детский ШД-4с выполнен из ламинированного ДСП, цвет шкафа и цвета дверей могут быть оговорены с заказчиком.
Особенностью шкафа является наличие съемных металлических полк. Благодаря этому и широким зазорам в дверцах обеспечивается свободная циркуляция воздуха внутри каждого из отделений детского шкафчика.
Детский шкаф для одежды приподнят от пола на металлических ножках, что значительно упрощает уборку.
Каждое отделение имеет 2 съемные оцинкованные решетчатые металлические полки и 2 крючка.
В закрытом положении дверцы каждого отделения образуют вентиляционные щели шириной по 50мм.
Торцы щитов шкафчика оклеены кромкой ПВХ толщиной 0,6 мм, а дверей кромкой ПВХ толщиной 2 мм.
Шкафчик для одежды имеет 4 отделения шириной 265 мм.

