Стол демонстрационный для кабинета химии ДС-Х - Белучколлектор. Производитель школьных досок, школьной мебели. Официальный сайт

Перейти к контенту

Главное меню:

Стол демонстрационный для кабинета химии ДС-Х

Для учебных кабинетов > Столы демонстрационные
Стол демонстрационный для кабинета химии щитовой конструкции. Каркас стола изготавливается из ДСП ламинированного. Щиты каркаса соединены между собой при помощи шурупов – стяжек.
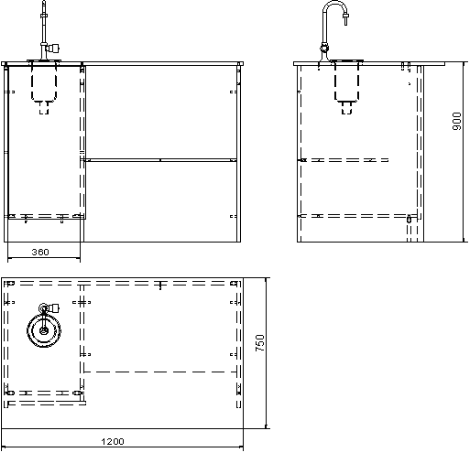
Демонстрационный стол размером 1200 х 750 мм и высотой 900 мм. Крышка демонстрационного имеет покрытие – износостойкий декоративный бумажно-слоистый пластик на основе бумаг пропитанных различными полимерными композициями. Крышка стола установлена на уровне 900 мм от пола и крепится к каркасу стола при помощи мебельных эксцентриковых стяжек. Под крышкой демонстрационного стола размещена широкая полка для принадлежностей. Стол комплектуется электрическими розетками, раковиной, сливом, колонкой.
Стол демонстрационный для кабинета химии
Стол демонстрационный для кабинета химии.
Одна половина – демонстрационная, вторая – приставной стол для работы преподавателя
абаритные и фунциональные размеры стола демонстрационного для кабинета химии
Габаритные и фунциональные размеры стола демонстрационного для кабинета химии.
Размеры упаковки каждого стола 1250х950х75мм.
Вес: стола демонстрационного - 65кг, стола приставного - 60кг.
Схема сборки. Стол демонстрационный для кабинета химии
Стол демонстрационный для кабинета химии ДС-Х1 может стыковаться с приставным столом для работы преподавателя УС-1 или УС-4я
Стол демонстрационный для кабинета химии новый

 
Copyright 2021. All rights reserved. Республика Беларусь. г.Минск
Назад к содержимому | Назад к главному меню